Property Search
2 Annie LaneKeenesburg, CO 80643




Mortgage Calculator
Monthly Payment (Est.)
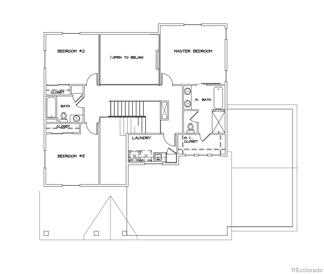
$4,010Your dream home starts here in Keenesburg, Colorado. Welcome to an exclusive opportunity where brand-new semi-custom or fully custom homes are ready to be brought to life. These to-be-built residences by T3 offer a rare chance to create a home that is truly yours from day one. Begin with a thoughtfully designed floor plan and personalize every finish and detail to reflect your style and vision or take it a step further and collaborate with T3 to create a completely custom floor plan tailored to your lifestyle. T3 specializes in bringing your vision to life with craftsmanship that stands the test of time, blending quality construction with timeless design. Quality construction by T3 delivers open living spaces, smart layouts, and everyday functionality. The ability to personalize everything from flooring and cabinetry to fixtures and finishes creates a level of ownership and pride you simply won’t find in resale homes. Set within an intimate community of just 8 expansive homesites, these properties provide the perfect canvas for refined country living, offering space, privacy, and flexibility rarely found in today’s market. The neighborhood is served by a community well system with an HOA that manages well maintenance and general grounds upkeep. Each lot is deeded 1 acre foot of water, with 0.73 acre foot of use allowed per year, providing valuable and secure water rights for your property. Located in the welcoming community of Keenesburg, you’ll enjoy small-town charm with easy access to major corridors, open skies, and Colorado’s wide-open beauty. It’s the perfect blend of secluded tranquility and everyday convenience. Large outbuildings, barns, or horse barns ARE ALLOWED and ENCOURAGED, and certain 4-H animals are permitted, making this an ideal setting for those seeking space, flexibility, and a true Colorado lifestyle. *Your dream starts here!*
| yesterday | Listing updated with changes from the MLS® | |
| 2 days ago | Listing first seen on site |
The content relating to real estate for sale in this Web site comes in part from the Internet Data eXchange ("IDX") program of METROLIST, INC., DBA RECOLORADO real estate listings held by brokers other than Priority Realty are marked with the IDX Logo. This information is being provided for the consumers' personal, non-commercial use and may not be used for any other purpose. All information subject to change and should be independently verified.
Did you know? You can invite friends and family to your search. They can join your search, rate and discuss listings with you.